Casa en Venta en Av. Río Nilo, valor Terreno
Popular Hornos, Guadalajara
 
      Popular Hornos, Guadalajara
!Atención inversionistas y desarrolladores!
Se ofrece en venta una propiedad ubicada en Avenida Río Nilo, Guadalajara, Jalisco, con las siguientes características destacadas:
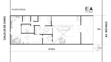
 • Terreno: 424 m²
 • Construcción: 294 m²
 • Precio: Se vende a valor de terreno 
Potencial de Desarrollo:
Esta propiedad es ideal para proyectos de desarrollos verticales, gracias a su amplio terreno y ubicación estratégica. Cuenta con varios permisos de construcción vigentes, lo que facilita la implementación de proyectos inmobiliarios de mayor tamaño. 
Ubicación Privilegiada:
Situada en una zona céntrica de Guadalajara, la propiedad ofrece fácil acceso a una amplia gama de servicios y comodidades:
 • Supermercados: A pocos minutos, facilitando las compras diarias.
 • Escuelas: Diversas instituciones educativas de todos los niveles en las cercanías.
 • Hospitales: Centros de salud y hospitales accesibles en la zona.
 • Centros Comerciales: Opciones de entretenimiento y compras a corta distancia.
Oportunidad de Inversión:
La venta de esta propiedad a precio de terreno representa una oportunidad única para inversionistas que buscan capitalizar en una zona con alta demanda y crecimiento. La posibilidad de desarrollar proyectos verticales en una ubicación con abundantes servicios añade un valor significativo a la inversión.
 
       
                 
                 
                 
                 
                 
                 
       
                 
                 
                 
                